Villa en Venta en Vitoria - Almería
- 0 m2
- 5 habitaciones
- 0 baños
- 0,00 €/m2
- 460.000 €
- Avísame si baja
última modificación 27-03-2024 a las 15:44

Esté anuncio se ha visto 891 veces
Caracteristicas generales
Otros comentarios:
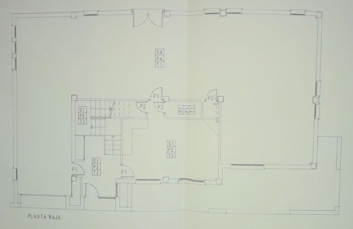
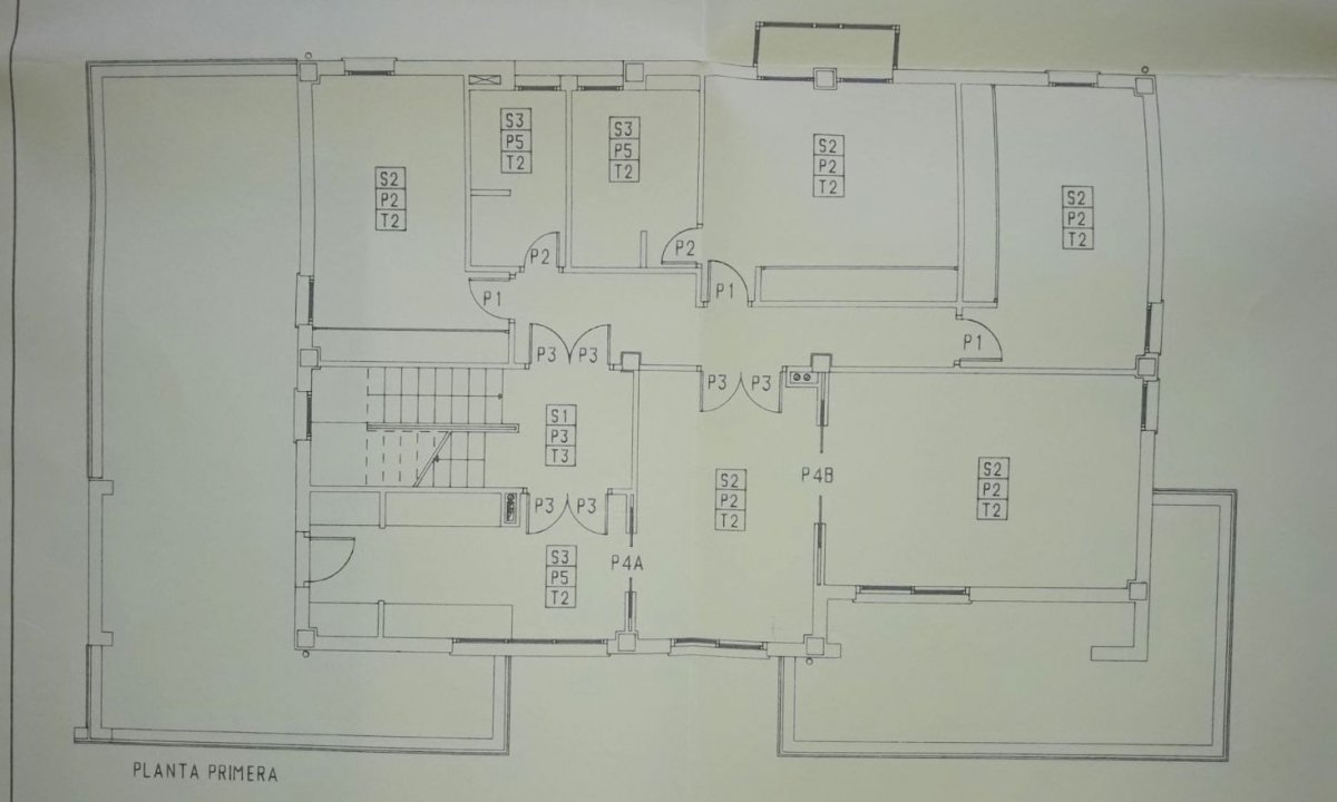
Magnífico Chalet Unifamiliar para entrar a vivir en Legarda, a 5 minutos de Vitoria-Gasteiz por la autovía y próximo al centro comercial Gorbeia.. La vivienda tiene una superficie útil de 411 m2, y está construida sobre una parcela de 1.000 m2. . La distribución es la siguiente::. Planta baja que consta de: porche, txoko con cocina y chimenea, de 24 m2, baño con ducha, despensa, cuarto de caldera, garaje para dos o más coches y un almacén. La zona de garaje y almacén tiene una superficie de 140 m2.. La primera planta consta de: cocina, salón-comedor, 3 habitaciones y 2 baños (uno... Leer más
Magnífico Chalet Unifamiliar para entrar a vivir en Legarda, a 5 minutos de Vitoria-Gasteiz por la autovía y próximo al centro comercial Gorbeia.. La vivienda tiene una superficie útil de 411 m2, y está construida sobre una parcela de 1.000 m2. . La distribución es la siguiente::. Planta baja que consta de: porche, txoko con cocina y chimenea, de 24 m2, baño con ducha, despensa, cuarto de caldera, garaje para dos o más coches y un almacén. La zona de garaje y almacén tiene una superficie de 140 m2.. La primera planta consta de: cocina, salón-comedor, 3 habitaciones y 2 baños (uno de ellos en el dormitorio principal) y 2 terrazas, una de 20 m2 y otra de 10 m2.. La planta ático consta de: un espacio abierto de 79 m2 con una cocina-comedor, salón, un baño, un dormitorio principal, dormitorio infantil y trastero.. Jardín consolidado con árboles frutales..
Tu solicitud ha sido enviada correctamente!