Edificio en Venta en San Cristóbal de La Laguna - Santa Cruz de Tenerife
- 0 m2
- 0 habitaciones
- 0 baños
- 0,00 €/m2
- 220.000 €
- Avísame si baja
última modificación 27-03-2024 a las 15:44

Esté anuncio se ha visto 1504 veces
Caracteristicas generales
Otros comentarios:
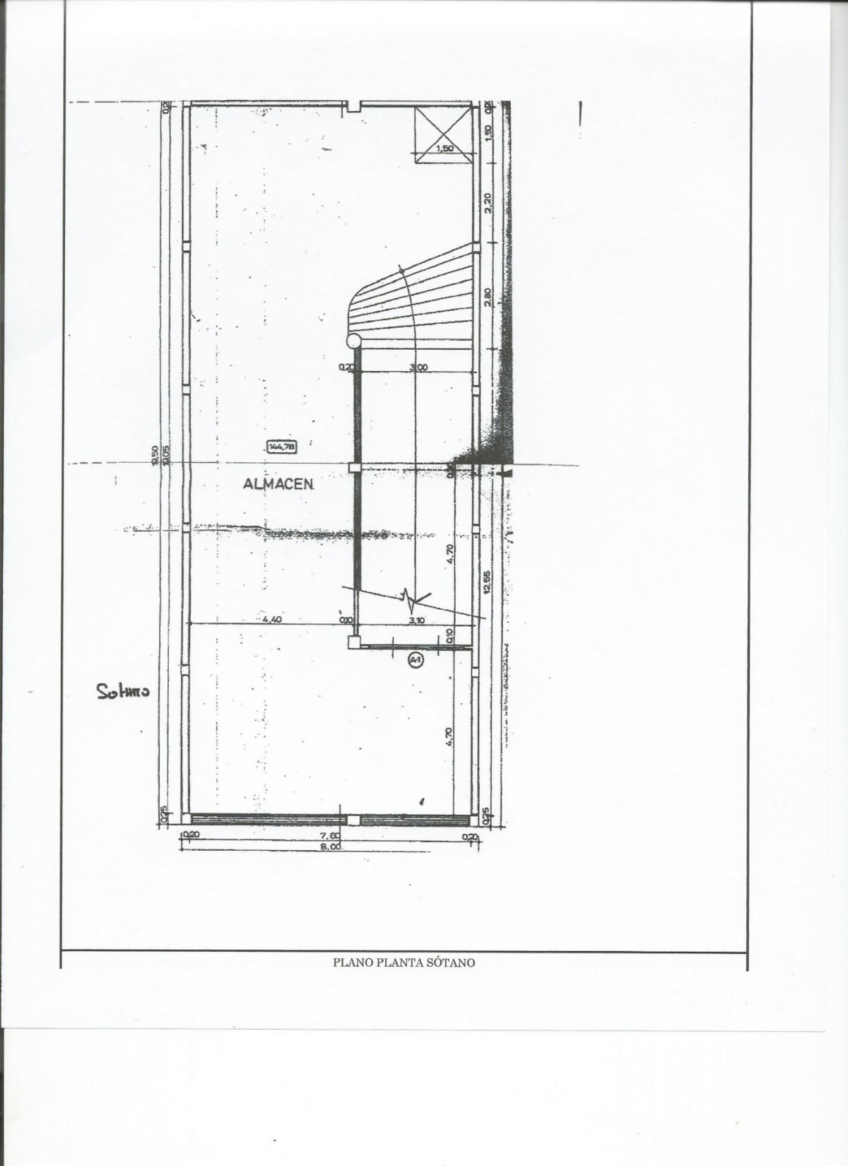
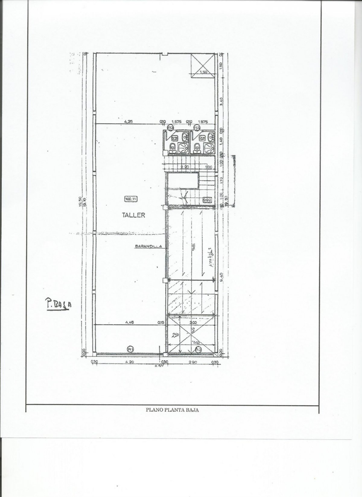
Edificio en San Matías construido en 1992 de tres plantas ideal para negocios de diverso tipo o para negocio más vivienda que se distribuye en planta sótano de 156 m2 con rampa de acceso rodado y capacidad para más de 8 vehículos. Planta baja de 128 m2 con acceso directo desde la calle y totalmente diáfana con 2 baños y escalera que comunica con la primera planta de 156 m2que tenía uso de oficina pero que podría reconvertirse en vivienda con un baño. Azotea transitable de 120 m2 aproximadamente que se puede construir ya que el ordenamiento admite una altura más al edificio. Estructu... Leer más
Edificio en San Matías construido en 1992 de tres plantas ideal para negocios de diverso tipo o para negocio más vivienda que se distribuye en planta sótano de 156 m2 con rampa de acceso rodado y capacidad para más de 8 vehículos. Planta baja de 128 m2 con acceso directo desde la calle y totalmente diáfana con 2 baños y escalera que comunica con la primera planta de 156 m2que tenía uso de oficina pero que podría reconvertirse en vivienda con un baño. Azotea transitable de 120 m2 aproximadamente que se puede construir ya que el ordenamiento admite una altura más al edificio. Estructura preparada para 2500 kg/m2 en planta baja. El edificio dispone de un montacargas que une las tres plantas y el hueco de la escalera permite la instalación de un ascensor. Edificio en buen estado general. Existe tasación de validez mayo 2017 por un importe total de 282.451 euros. Solicite información y venga a verlo
Tu solicitud ha sido enviada correctamente!